Heat Pump Wiring Diagram Goodman

Electrical Where Do I Connect My Unused C Wire To My Goodman Heat Pump Home Improvement Stack Exchange

Heat Pump Wiring Diagram Goodman

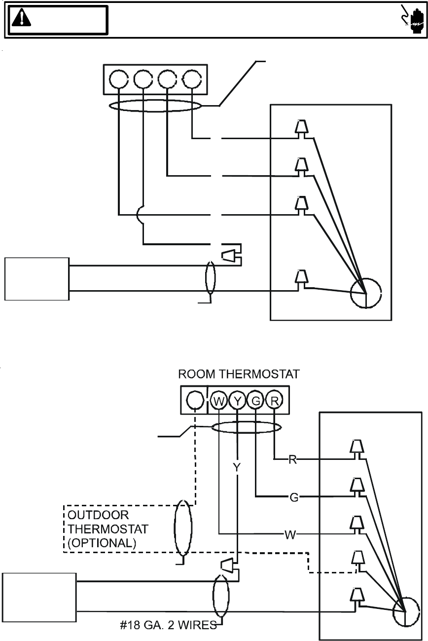
Have you ever wondered how heat pumps work and how they are wired? Understanding the wiring diagram for your Goodman heat pump can help you troubleshoot any issues that may arise. Let’s take a closer look at the heat pump wiring diagram Goodman.

Goodman is a reputable brand known for its reliable and efficient heating and cooling systems. Whether you have a split system or a packaged unit, knowing the wiring diagram can be invaluable when it comes to maintenance and repairs. Let’s delve into the specifics of Goodman heat pump wiring.

Related Post  Simple Chevy 350 Starter Wiring Diagram

Heat Pump Wiring Diagram Goodman

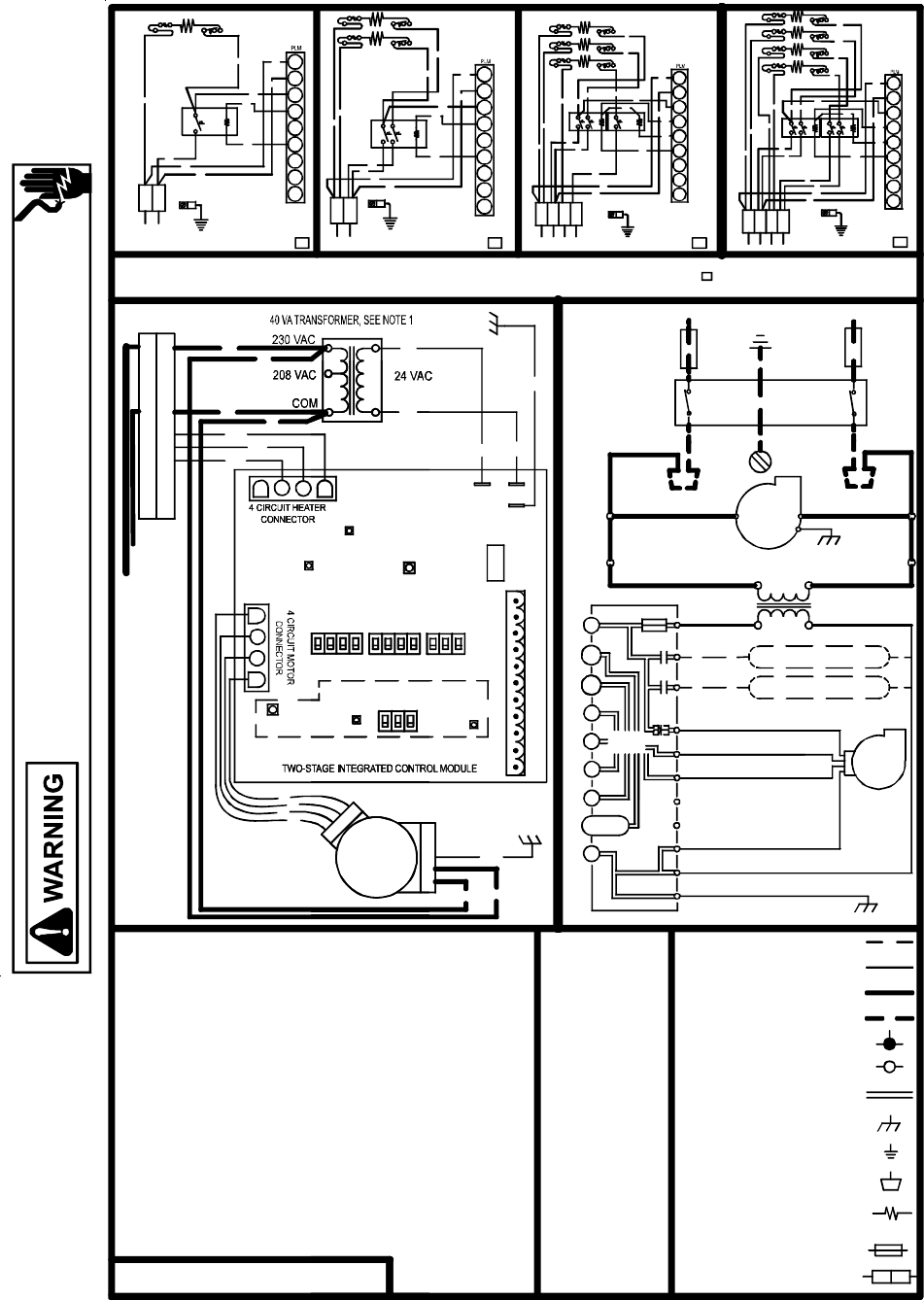
If you are unsure about the wiring diagram or encounter any issues, it is always best to consult a professional HVAC technician. They have the expertise and knowledge to diagnose and resolve any wiring problems effectively. Don’t hesitate to reach out for help if needed.

In conclusion, understanding the wiring diagram for your Goodman heat pump is essential for proper maintenance and troubleshooting. By familiarizing yourself with the components and connections, you can ensure that your heat pump operates smoothly and efficiently. Remember, when in doubt, seek professional assistance to avoid any potential problems.

Related Post  Lutron Maestro 3 Way Dimmer Wiring Diagram

Download and Print Heat Pump Wiring Diagram Goodman Listed below

Wiring Where Should I Connect My C wire On My Old Goodman Unit GMP075 4 Rev 13 Home Improvement Stack Exchange

Goodman Mfg Co LP AVPTC313714 Manual

Wyze Thermostat Help W Wire Issues And No G Wire Home Wyze Forum

Goodman Mfg Co LP ASPF Manual

Electrical Where Do I Connect My Unused C Wire To My Goodman Heat Pump Home Improvement Stack Exchange

Back To Top